Jiangsu Gongtang Chemical Equipments Co., Ltd. Jiangsu Gongtang
  • 
  • Главная
  • О нас+
    • Профиль компании
    • Экскурсия по предприятию
    • Сертификаты
    • Выставки
  • Продукция+
  • Поддержка и услуги
  • Отрасли
  • Проекты
  • Контакты
  • Видео
  • Главная
  • Продукция
  • Эмалированные колонны
Эмалированные колонны
  • Эмалированные колонны
  • Горизонтальный эмалированный сборник
  • Эмалированные колонны
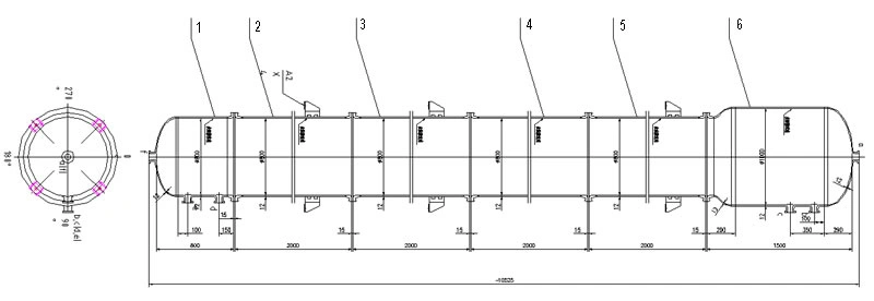
    Изготовленная на заказ эмалированная колонна с внешней арматурой

Эмалированные колонны

Коррозионностойкие колонны для процессов дистилляции, экстракции и абсорбции

Эмалированные ректификационные колонны предназначены для промышленных процессов с высокоагрессивными или химически активными средами. Стальной корпус дает колонне высокую прочность для работы под давлением, в то время как стеклоэмалевое покрытие защищает от коррозии и предотвращает контакт технологической среды с металлом. Такая конструкция делает коррозионностойкую колонну более безопасной, стабильной и долговечной для процессов дистилляции, абсорбции и экстракции и других процессов разделения или обработки химически активных веществ.

Запросить расценки

Наши эмалированные колонны соответствуют стандартам GB25025-2010 или ASME, что гарантирует их надежную работу и соответствие отраслевым требованиям. Их универсальная конструкция объединяет химическую инертность эмалевого покрытия с прочностью стальной конструкции, в результате чего оборудование получается долговечным и коррозионностойким.

Помимо стандартных моделей эмалированных колонн мы также можем предложить нашим клиентам разработку и производство индивидуальных решений, включая колонны особых типов, абсорберы, адсорберы, десорберы, экстракторы, а также любое другое эмалированное технологическое оборудование, адаптированное к конкретным условиям эксплуатации.

Особенности
  • Химическая стойкость: эмалированные колонны могут работать с широким спектром коррозионных сред, включая сильные кислоты, окислители и органические растворители. Единственное ограничение касается растворов, содержащих ионы фтора, которые не подходят для данного покрытия.
  • Гладкая поверхность: внутренняя стеклоэмалевая поверхность гладкая и не имеет пор, что делает ее устойчивой к загрязнению и значительно облегчает очистку по сравнению с незащищенным металлом.
  • Защита продукта: благодаря высокой непроницаемости эмалевого покрытия предотвращается перекрестное загрязнение между партиями различной продукции. В то же время химическая стабильность эмали сохраняет чистоту, цвет и свойства хранимых или перерабатываемых материалов.
Технические характеристики
Расчетная температура 0℃~+200℃
Расчетное давление Среда в колонне FV-0.25 МПа
Рубашка 0.6 МПа

Технические характеристики
DN D (мм) Макс. длина L (мм) Макс. длина секции L1 (мм) Способ монтажа
200 219 3000 - Соединение на разъемном фланце
250 273 3000 -
300 325 3000 500
400 406 3000 750 Соединение на зажимах
500 508 3000 1000
600 600 4000 1400
800 800 4500 2000
1000 1000 4500 2500
1200 1200 6000 4000
1400 1400 6000 4000
1600 1600 6000 4000
1800 1800 6000 4000
2000 2000 6000 4000

Примечание: Штуцеры и комплектующие для эмалированных колонн могут быть изготовлены по индивидуальным требованиям заказчика.

Эмалированные колонны в работе на объектах заказчиков
Эмалированные колонны в работе на объектах заказчиков
Эмалированные колонны в работе на объектах заказчиков
Эмалированные колонны в работе на объектах заказчиков

Мы также предлагаем комплектующие для эмалированного оборудования

Требуется помощь в выборе эмалированных систем?

Наши инженеры готовы предоставить экспертные консультации по коррозионностойким эмалированным реакторам, резервуарам для хранения и индивидуальным технологическим установкам для химической, фармацевтической и промышленной отраслей.

  • Другие продукты
Эмалированные теплообменники
Эмалированные теплообменники
Эмалированная биконическая вращающаяся сушилка
Эмалированная биконическая вращающаяся сушилка
Эмалированные реакторы
Эмалированные реакторы
Подробнее

Можете ли вы изготовить эмалированные колонны по индивидуальному заказу? Какие типы доступны?

Да. Доступна индивидуальная разработка различных секций колонн, включая секции с обогревом рубашкой. В зависимости от потребностей проекта могут быть поставлены специализированные аппараты, такие как ректификационные, экстракционные, абсорбционные колонны, а также другое нестандартное эмалированное оборудование.

Какие особенности эмалированных колонн гарантируют качество производимых материалов?

Одним из главных преимуществ эмалированных колонн является гладкая внутренняя поверхность, не подверженная загрязнению и крайне простая в очистке. Поскольку стеклоэмалевое покрытие непроницаемо, оно предотвращает перекрестное загрязнение различных материалов, а его высокая стабильность помогает сохранять чистоту, цвет и свойства материалов в процессе переработки

Jiangsu Gongtang Chemical Equipments Co., Ltd. Jiangsu Gongtang
Производитель эмалированного оборудования
Быстрый доступ
  • О нас
  • Экскурсия по предприятию
  • Сертификаты
  • Выставки
  • Поддержка и услуги
  • Наши проекты
  • Видео
Продукция
  • Эмалированные реакторы
  • Эмалированные сборники
  • Эмалированные колонны
  • Эмалированные теплообменники
  • Эмалированная биконическая вращающаяся сушилка
  • Комплектующие
  • Интегрированные промышленные системы
Контакты
chrisz.jsjjgt@outlook.com
+86-523-89110022
+86-15861003636